En Venta
Departamento en Venta 3 Amb. Balvanera
Código: 188314

Sarmiento 2300, C1044AAJ Cdad. Autónoma de Buenos Aires, Argentina, Balvanera, Capital Federal, Argentina.

USD77.000

Departamento
Compartir esta Propiedad

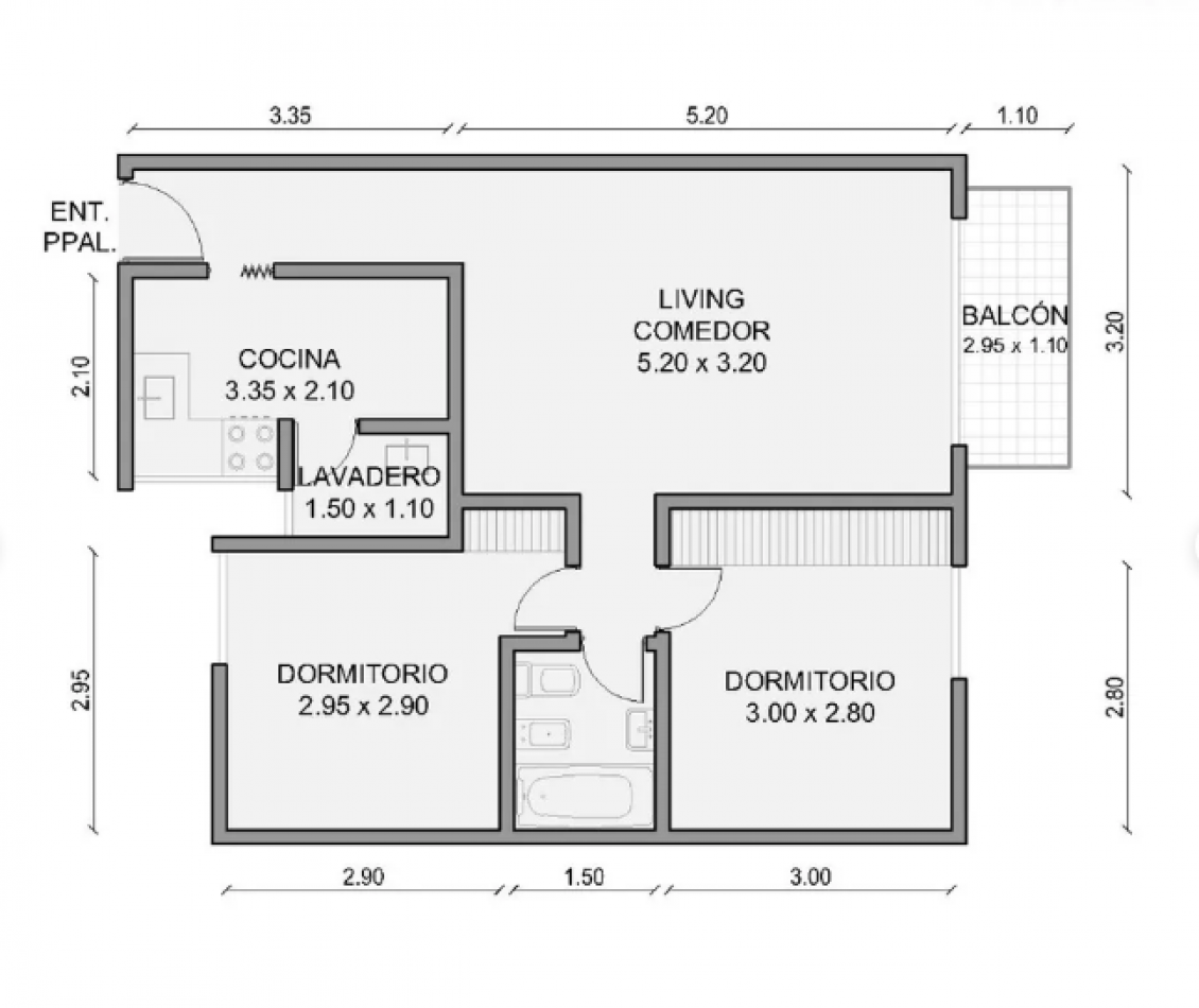
Descripción de la Propiedad

En Venta depto 3 ambientes con Balcon al contrafrente, Luminoso en Balvanera.
2 Dormitorios.
Baño completo
Amplio Living comedor
Cocina equipada
Lavadero
La propiedad se encuentra en un Quinto piso al contrafrente.
Para mas información o coordinar una visita comuníquese con la inmobiliaria Walter Porta al 4433-6160 o 15-3610-2345.

Solicite tasación: con más de 25 años en el mercado inmobiliario, brindando un servicio de excelencia, con honestidad, compromiso, atención profesional y personalizada.

AVISO LEGAL: Las descripciones arquitectónicas y funcionales, valores de expensas, impuestos y servicios, fotos y medidas de este inmueble son aproximados. Los datos fueron proporcionados por el propietario y pueden no estar actualizados a la hora de la visualización de este aviso por lo cual pueden arrojar inexactitudes y discordancias con las que surgen de los las facturas, títulos y planos legales del inmueble. El interesado deberá realizar las verificaciones respectivas previamente a la realización de cualquier operación, requiriendo por sí o sus profesionales las copias necesarias de la documentación que corresponda. Venta supeditada al cumplimiento por parte del propietario de los requisitos de la resolución general Nº 2371 de la AFIP (pedido de COTI)

Mas detalles
Expensas: $ 153000
  • Acepta mascotas
  • Balcon
  • Luminoso
  • Terraza
  • Asfalto
  • Agua Corriente
  • Cloacas
  • Electricidad
  • Tendido Eléctrico
  • Red Gas Natural
  • Apto Crédito
  • Portero
  • Lavadero
  • Cocina
  • Comedor
  • Dormitorio
  • Luminosidad
  • Cocina equipada
  • Termotanque
  • Contrafrente
  • Terraza
  • Ascensor
  • Living Comedor
  • Balcón
  • Permite Mascotas
  • Apto Crédito
  • living
  • Cocina a gas
  • Baño completo